Oficiu: or. Ialoveni, str. Iurie Gagarin 1/A

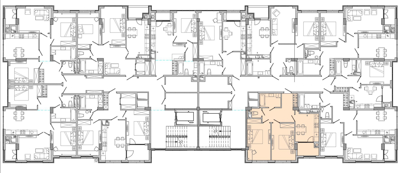
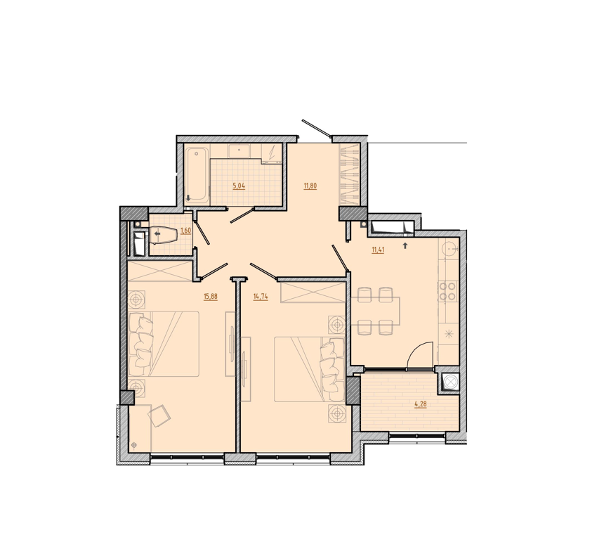
Квартира

Полезная площадь: 64.75m²
Номер блока: A
Этаж: 7
Количество комнат: 2
Ванная: 2 Ванная
Свяжитесь с нами
Теплоизолированные окна с 5 камерами и LOW-E
Теплые полы по всей площади квартиры
Напольное отопление для повышенного комфорта
Контролируемая система вентиляции для свежего воздуха
Просторные балконы с панорамным видом
Звукоизоляция для спокойной среды