Oficiu: or. Ialoveni, str. Iurie Gagarin 1/A

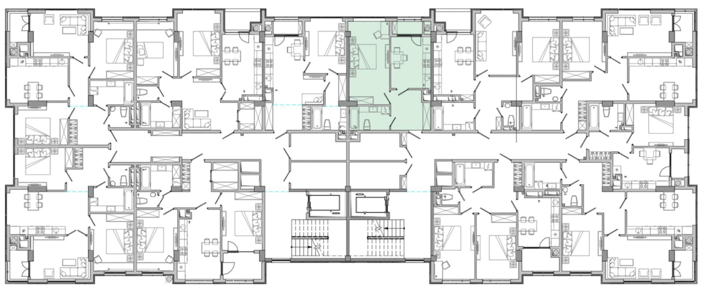
Квартира

Полезная площадь: 46.18m²
Номер блока: A
Этаж: 7
Количество комнат: 1
Ванная: 1 Ванная
Свяжитесь с нами
Теплоизолированные окна с 5 камерами и LOW-E
Теплые полы по всей площади квартиры
Напольное отопление для повышенного комфорта
Контролируемая система вентиляции для свежего воздуха
Просторные балконы с панорамным видом
Звукоизоляция для спокойной среды